Rebar, Mesh & Construction Supplies (Pty) Ltd trading as RMCS
Rebar, Mesh & Construction Supplies (Pty) Ltd t/a RMCS
571 Setter Road, Commercia Industrial
MIDRAND, Gauteng Province, 1685
South Africa
Phone#: +27 (0)11 310 8660 / 2324 / 7113     Fax#: +27 (0)86 545 6012
email: sales@rmcs.com
email: sales@rmcspl.co.za
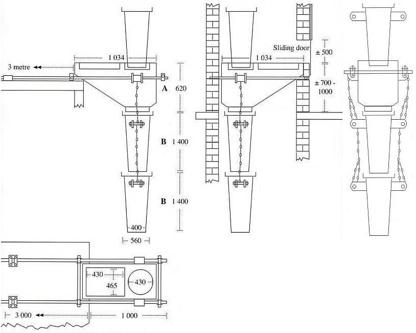
Rubble Chutes

 EMPOWERDEX BEE Rating
"AAA" - Level Two Contributor
Click here to view or print our 2014 BEE certificate
Click here to view or print our 2015 BEE certificate
OUR PRODUCTS
HOME
OUR PARTNERS
ASSOCIATIONS
NEWS
CONTACT US
The Star Interbuild Africa 2012 exhibition entrepreneur_sa_button.jpg Rubble Chute Rubble Chute Rubble Chute Rubble Chutes
Rubble Chutes are the perfect way to remove rubble or household waste safely from multi-storied buildings to the rubble dump or waste container.

The Rubble, Waste or Safety Chute consists of two parts, namely:
- The Receiver which is located on the appropriate
   floor or level of the building where the rubble or waste
   is generated.
- The Chute which guides the waste as it falls to a
   safe area on the ground.
Features and Benefits:
- Made from durable Polyethelyne
- No corrosion or rust
- Versatile
- Minimum noise levels
- Easy to install
- Promotes safety on any building site
Rubble or Waste Receivers
are placed in line, but on different floors



The safety chute
is extended by linking numerous chutes together until the required height is reached.
Fittings supplied with Receiver / Chute:
2 x 5mm x 1,2 meter chains

Fittings required but not supplied:
2 x 4 meter Scaffold Tube
2 x 1 meter Scaffold Tube
4 x (50mm x 50mm) bands with back plate eyebolt
2 x Swivel Coupler with base plate